Сепараторы продувки СП, СНП, СПП
От -60 до 40 °C
не более 9 баллов
ООО "НПО "Спецнефтемаш"
Типоразмеры в наличии:
Назначение и ключевая функция вертикального циклонного устройства, именуемого сепаратором продувки СП, — разделение продувочной воды котла на две составляющие: жидкую и парообразную. Это необходимо для последующей утилизации тепловой энергии обеих фракций. Согласно принципу работы сепаратора периодической продувки и непрерывной, сепаратор использует центробежную силу, генерируемую тангенциальной подачей в устройство жидкости. Результирующими продуктами становятся обезвоженный пар высокой степени сухости и жидкая фаза.
Каталог сепараторов продувки СП, СНП, СПП
Назначение сепаратора СП
Периодическая продувка сепаратором и непрерывная продувка, во время которой происходит сепарация водяного пара и выделение конденсата, — ключевая функция аппарата при обслуживании отопления. Источниками исходной рабочей среды являются системы отвода из котла использующейся для продувки воды, конденсатосборники, приемники пара и линии сброса конденсата из трубопроводов, по которым транспортируется парообразная субстанция. Процесс сепарации реализуется путем редуцирования гидравлического напора в расширителе. Назначение операции — утилизация тепловой энергии полученных компонентов.
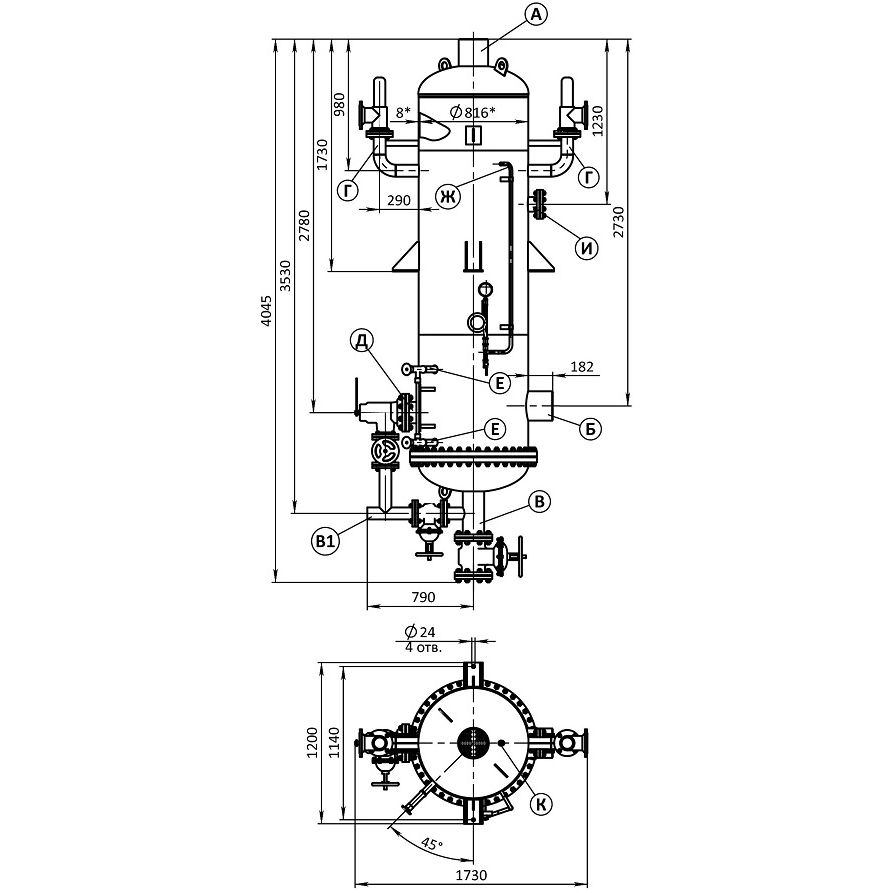
Устройство и принцип работы сепаратора продувки котла
Конструктивно агрегат выполнен в виде изготовленной по сварной технологии вертикальной емкости с корпусом цилиндрической формы с приваренными днищами эллипсовидной формы. Для монтажа на опорные конструкции предусмотрены две или четыре точки крепления.
В устройстве сепаратора продувки котла снизу сконструирован приемный узел из двух концентрически размещенных цилиндрических элементов и пары патрубков, приваренных к стенкам по касательной. Его назначение — прием поступающей продувочной воды. В этих моделях сохранение постоянного уровня сепарированной жидкой среды осуществляется автоматически за счет регулятора-уровнемера поплавкового типа, расположенного снизу аппарата. Мониторинг объема отделенной жидкости выполняется комплексом приборов индикации, укомплектованным смотровым стеклом и запорно-регулирующими клапанами.
Согласно принципу работы контроль установленных гидравлических характеристик в паровом пространстве моделей СП-0,28-0,45...СП-1,5-0,8 осуществляется манометром с лимитом измерения 1,6 МПа (16 кгс/см²). Манометр оснащен трехходовым и спускным кранами. Максимально избыточное давление сепаратора непрерывной продувки (расширителя) Ру определяется суммарными гидравлическими потерями в пароотводящей трубе котла и в системе, принимающей парообразное вещество из агрегата, или атмосферным давлением, если осуществляется сброс в атмосферу.
Принцип работы направлен на предотвращение превышения предельного напора внутри узла: за это действие отвечает предохранительный клапан с условным проходом 50 мм со сменной пружиной 1-го типа, рассчитанной на диапазон давлений 7–13 кгс/см². Клапан оснащен колпаком с регулировочным винтом, настраивающим пружину на требуемый напор. В моделях СП-0,15-0,3 (Ру 0,06 МПа) и СП-5,5-1,4 (Ру 0,15 МПа) предохранительный клапан не устанавливается.
Принципиальная схема и принцип работы сепаратора СП
Порядок эксплуатации
Перед запуском оборудования в обязательном порядке проверяют исправность всех магистралей, арматуры и контрольно-измерительных приборов.
Действия для сепаратора продувки:
- подать среду из продувочной системы котла, манипулируя запорной арматурой;
- активировать линии отвода конденсата и парообразной фракции;
- после прекращения подачи смеси в обязательном порядке наблюдают за показаниями уровнемера, определяющим уровень;
- когда расчетные параметры будут достигнуты, их стабилизируют, регулируя выпускной клапан на линии отвода.
Запуск производится согласно утвержденному графику. При температуре t1, меньшей или равной t2, пусковое давление Р2 должно соответствовать рабочему Р1. Изменение температуры в котле (как повышение, так и понижение) рекомендуется проводить со скоростью не более 30 °С в час. После выполнения пусковых операций, описанных выше, и достижения нужного напора, указанного в технической документации, узел можно считать введенным в эксплуатацию в штатном режиме.
Технические характеристики сепараторов продувки периодической и непрерывной
| Маркировка сепараторов СП | V, м3 | Ру, кгс/см2 | t, С | Вес, т |
| 0,15-0,3 | 0,15 | 0,6 | 113 | 0,2425 |
| 0,28-0,45 | 0,28 | 7,0 | 170 | 0,47 |
| 0,7-0,6 | 0,7 | 7,0 | 170 | 0,756 |
| 1,4-0,8 | 1,4 | 7,0 | 170 | 1,113 |
| 1,5-0,8 | 1,5 | 7,8 | 175 | 1,2 |
| 5,5-1,4 | 5,5 | 1,5 | 127 | 1,878 |
Обслуживание сепараторов СП
Эксплуатация сепаратора непрерывной продувки и принцип работы оборудования требуют постоянного контроля со стороны обслуживающего персонала. С целью обеспечения бесперебойного действия аппарата необходимо минимум трижды за смену осуществлять проверку параметров пара и количества конденсата в устройстве по водоуказательному прибору, контролируя при обслуживании функциональность механизма регулирования объема жидкости.
Требуется регулярно продувать стекла водоуказателей. Выполняемый время от времени осмотр механизма требуется, чтобы провести профилактику и обнаружить неисправности. Очистку внутренних полостей рекомендуется осуществлять не реже одного раза в два-три года при проведении плановых ремонтных операций. Техническое освидетельствование агрегата обязательно выполняют после монтажа, перед пуском, с заданной периодичностью в процессе службы, и при необходимости проводится внеплановое обслуживание.
При продолжительном выводе оборудования из эксплуатации, при обнаружении утечек в запорной арматуре ремонтируемый участок изолируют заглушками. Обращение с фланцевыми соединениями трубопроводов и сепаратора продувки требует повышенного внимания, чтобы предотвратить термические травмы вследствие контакта с горячей водой или паром.
Ресурс
Расчетный период службы — два десятилетия. Гарантия на предназначенный для периодической продувки сепаратор СП действительна в течение двух лет с начала использования, но не более трех лет с момента поставки покупателю, при условии соблюдения требований к транспортировке, хранению, установке, обслуживанию и применению по назначению. Гарантийные условия действуют и в отношении используемого для непрерывной продувки сепаратора СП.
Приобрести сепараторы продувки СП, СНП, СПП в ООО "НПО "Спецнефтемаш"
ООО "НПО "Спецнефтемаш" предлагает купить сепараторы непрерывной продувки, периодической, сепараторы СП разных модификаций. Для оформления покупки можно воспользоваться онлайн-формой заявки на сайте компании, заказать обратный звонок или обратиться к специалистам отдела продаж по телефону 8 (800)-3021-565. Консультации предоставляются по вопросам ценообразования (стоимости модификаций изделий) и организации доставки. Производитель гарантирует качество используемых материалов, подтверждая его соответствующими сертификатами по требованию клиента. Доставка осуществляется по всей территории России и СНГ.


